职称:教师
单位:重庆科技大学
主讲教师:陈聪
教师团队:共3位
| 学校: | 重庆科技大学 |
| 开课院系: | 建工学院 |
| 专业大类: | 管理科学与工程 |
| 课程编号: | ZJ0057643 |
| 学分: | 3 |
| 课时: | 48 |
3.4.2.2 路面面层计量
知识大树与问题框架
本章节在知识大树中的定位

问题框架

计算工程量
1、清单工程量计量
(1)完成项目名称填写
| 道路工程工程量计算 | |||||||||||
| 序号 | 项目编码 | 项目名称 | 单位 | 清单工程量计算规则 | 计算式说明 | 工程量计算式 | 数量 | 定额工程量计算规则 | 计算式说明 | 工程量计算式 | 数量 |
| 路面路基工程 | |||||||||||
| 1 | 面层 | ||||||||||
(2)整理项目编码、计量单位、工程量计算规则

(3)计算工程量
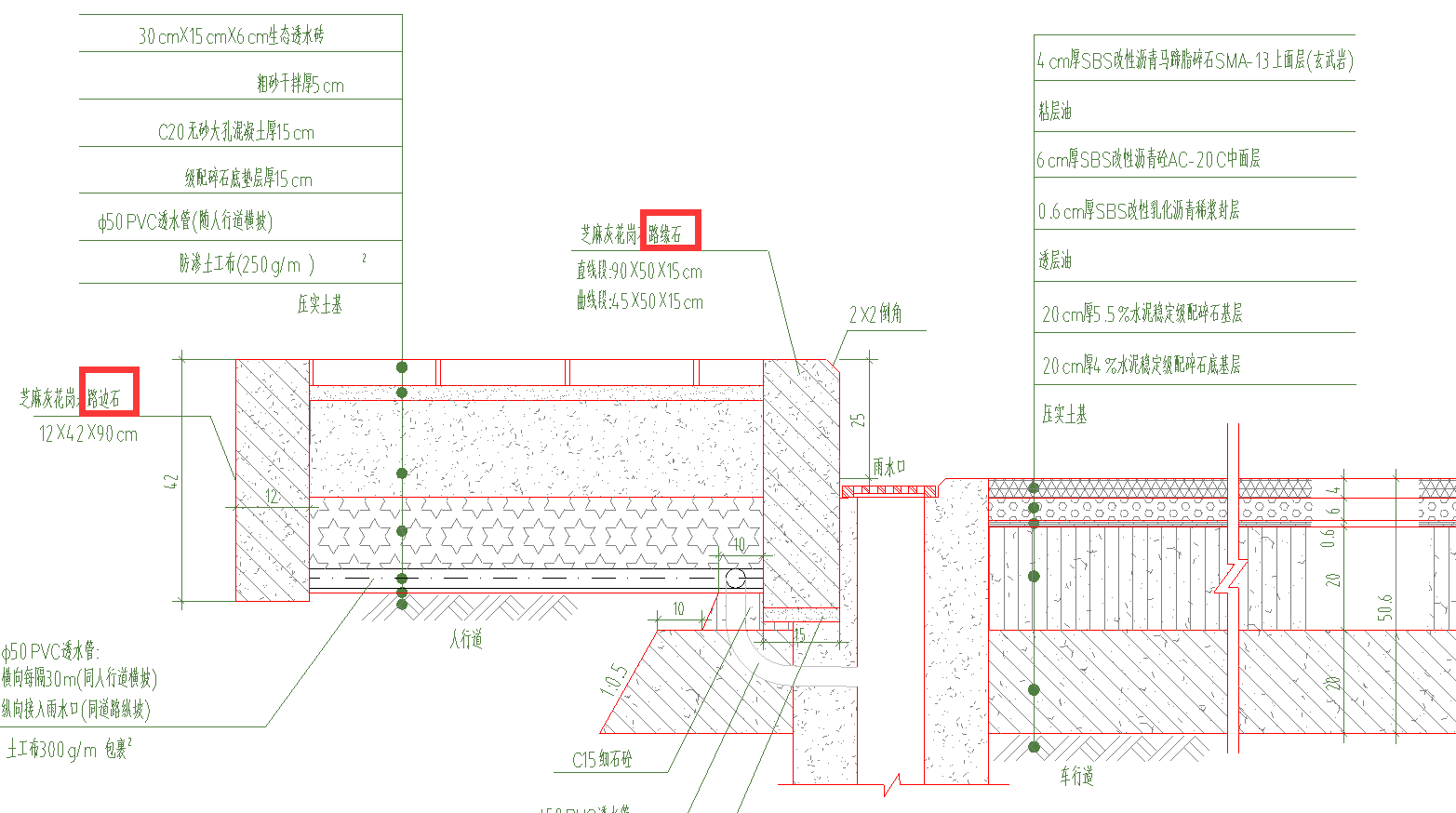
解惑:平石
在市政工程中,侧石、缘石和平石是道路附属设施的重要组成部分,它们各自有不同的功能和特点,对于工程造价也有所影响。以下是对这三种石材的解释,以及它们在工程造价中的作用:
侧石:侧石通常设置在机动车主路与非机动车路之间的隔离带,或者道路路面两侧、分隔带、安全岛四周,高出路面,用于分隔车行道与人行道、绿化带、分隔带、安全岛等构造物,标定车行道范围以维护交通秩序。侧石露出地面,一般比路面高15cm至20cm。
缘石:缘石位于非机动车路与人行路之间,它只露出一面,通常用于界定人行道的边缘,与侧石相比,缘石的高度较低,更贴近路面。
平石:平石是车道的一部分,一般为40cm宽,紧贴路缘石,呈带状。它主要作用是排水,雨水收集井布置在平石上。在平坡路面上,雨水收集井处的平石标高会降低,而两井中间的平石标高则会上调。现代混凝土路面一般不设平石,但在机械摊铺的沥青路面上,由于无法调整路面的局部高程,因此必须设置平石。

完成清单工程量计算
| 序号 | 项目编码 | 项目名称 | 单位 | 清单工程量计算规则 | 计算式说明 | 工程量计算式 | 数量 |
| 路面路基工程 | |||||||
| 1 | 面层 | ||||||
| 1.1 | 040203006001 | SBS改性沥青混凝土AC-13厚100px | ㎡ | 按设计图示尺寸以面积计算,不扣除各种井所占面积,带平石的面层应扣除平石所占面积 | |||
| 1.2 | 040203003001 | 0.3~0.6L/㎡乳化石油沥青粘层(PCR型) | ㎡ | ||||
| 1.3 | 040203006002 | AC-20C中粒式沥青混凝土厚150px | ㎡ | ||||
| 1.4 | 040203003002 | 透层油0.7~1.5L/㎡ | ㎡ | ||||
2、定额工程量计量
(1)查找定额中道路面层工程量的计算规则


(2)完成定额工程量的计算
复盘
路面面层的计量