实训操作
-
1 实训任务1
-
2 实训任务2
上一节
下一节
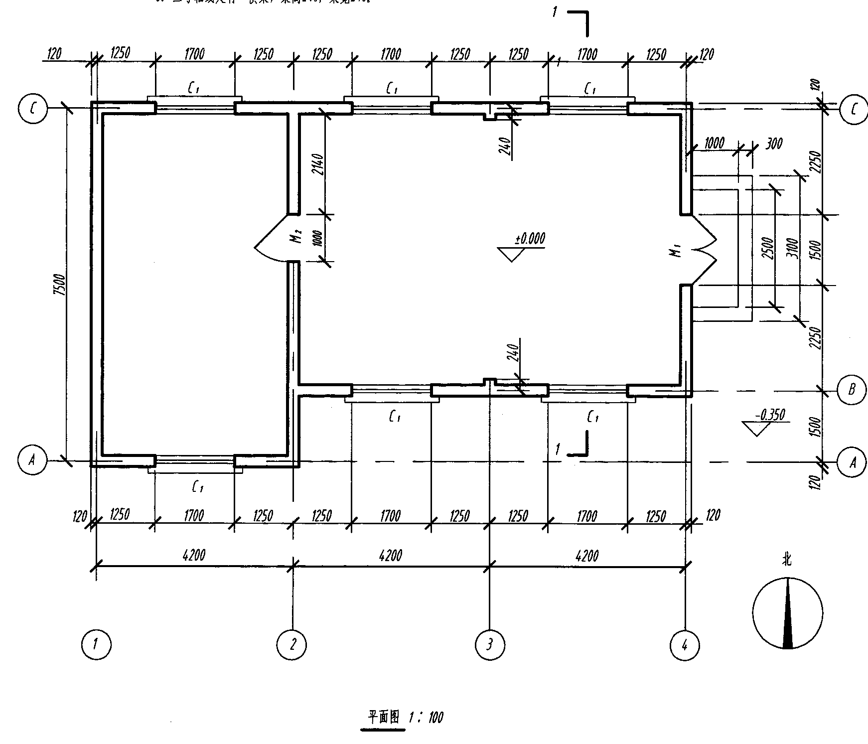
内容:在读懂建筑平、立、剖的基础上,按照平面图中的剖切符号理解绘制1-1剖面图。
要求:比例1:100,平、立、剖在同一个文件内保存,图线、尺寸标注、文字标注等符合建筑制图标准 。






