目录

  • 1 课程简介
    • 1.1 居住空间设计课程介绍
  • 2 居住空间设计的概念
    • 2.1 居室空间设计认知
    • 2.2 居室空间设计流程
    • 2.3 居室空间设计的内容
    • 2.4 居室空间的功能组成(一)
    • 2.5 居室空间的功能组成(二)
    • 2.6 居住空间的限定
    • 2.7 居室空间与人体工程学
    • 2.8 本章测验
  • 3 居住空间设计的风格
    • 3.1 居住空间设计的风格(一)
    • 3.2 居室空间设计的风格(二)
    • 3.3 本章测验
  • 4 居住空间的色彩与照明
    • 4.1 居住空间的色彩设计
    • 4.2 居住空间的采光与照明设计
    • 4.3 章节测验
  • 5 居住空间绿化与装饰材料设计
    • 5.1 居住空间的绿化
    • 5.2 居住空间常用装饰材料
    • 5.3 章节测验
  • 6 功能空间设计
    • 6.1 起居室(客厅)空间设计
    • 6.2 餐厅空间设计
    • 6.3 卧室空间设计
    • 6.4 书房空间设计
    • 6.5 卫生间空间设计
  • 7 设计案例分析
    • 7.1 案例一北欧风格居室设计案例分析
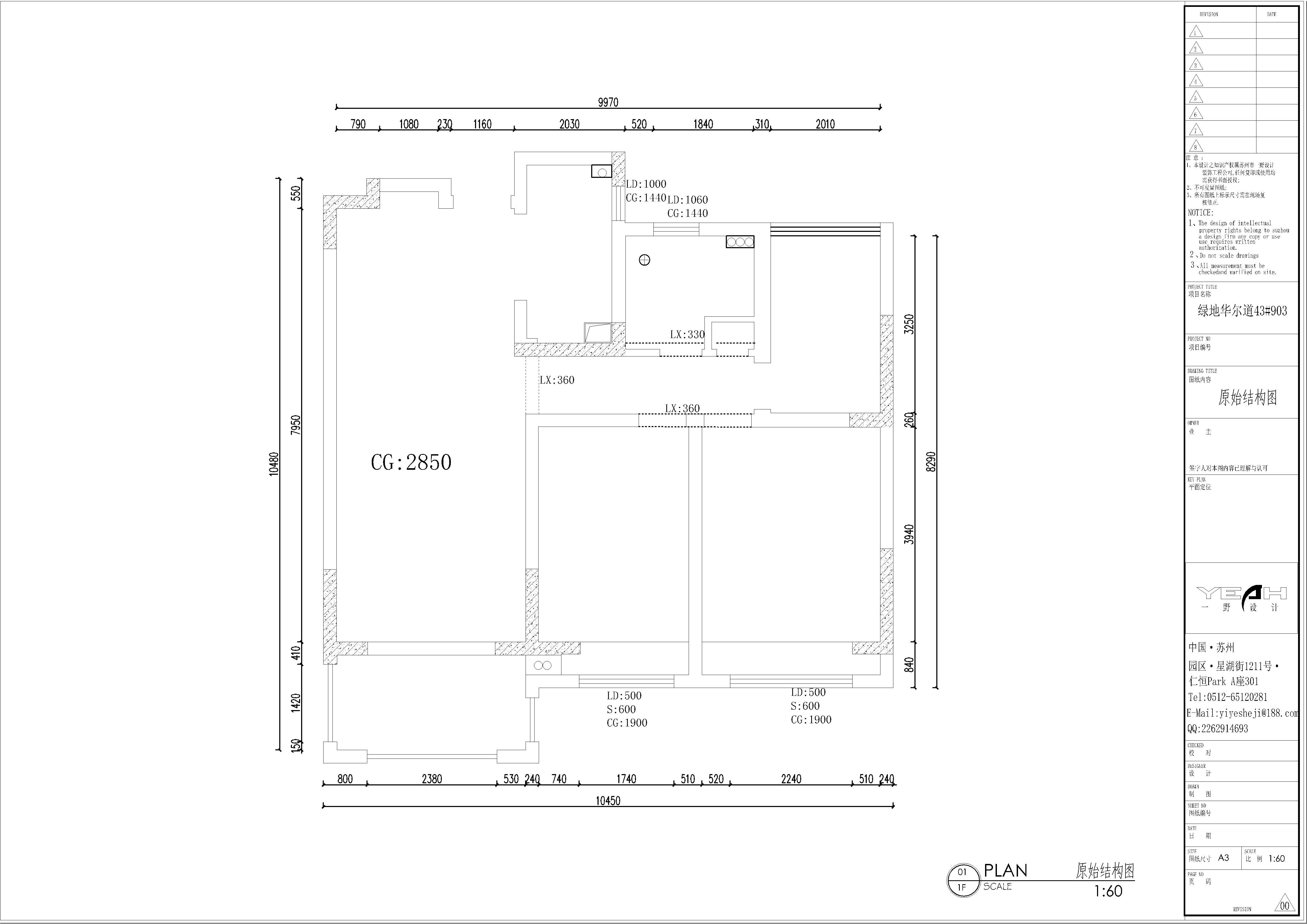
      • 7.1.1 原始结构解析
      • 7.1.2 功能优化分析
      • 7.1.3 空间效果解读
      • 7.1.4 讨论
    • 7.2 案例二美式风格居室设计案例分析
      • 7.2.1 原结构解读
      • 7.2.2 功能优化分析
      • 7.2.3 空间效果解读
    • 7.3 案例三老式公房改造设计
    • 7.4 其他优秀设计案例欣赏
    • 7.5 最新行业标准
  • 8 居住空间设计实训
    • 8.1 实训基础
    • 8.2 项目一
    • 8.3 项目二
    • 8.4 项目三
  • 9 学生优秀作品选登
    • 9.1 优秀作业—色彩搭配练习
    • 9.2 优秀设计作品
项目一
  • 1 原始结构
  • 2 效果图