一、读图的基本要领
1.几个视图联系起来看
一个视图只能反映物体两个方向的尺寸,不能确定唯一的空间物体形状。图1中的物体都是由同一个主视图构思而成。

(a)

(b)

(c)

(d)
图1 一个视图不能定形
当给定两个不恰当的视图时,也不能唯一确定物体的空间形状。通过图3(a)的主视图和左视图可以构思出不同的空间物体,如图3(b)~(e)所示。

(a)

(b) (c)

(d) (e)
图2 二个视图不能定形
读图时,需要将几个视图联系起来看,通过分析,构思才能想象物体的空间形状
2.抓到形状及位置特征视图
读图时,抓住形状和位置特征视图,再结合其他视图,可以快速识别物体的形状,加快读图的速度。图3的俯视图为形状特征视图。

(a)

(b)
图3 抓住特征视图
图4的左视图为形体的位置特征视图。

(a)

(b)
图4 抓住特征视图
3.明确视图中图线和线框的含义
不管一个物体那么复杂,它的投影视图都是由一些图线和线框组成。读图时,应该明确视图中图线和线框的代表的含义。
视图中图线的含义包括:
(1)物体上两个相邻表面的交线。
(2)物体表面的积聚性投影。
(3)曲面转向轮廓的投影。

图5 视图中图线的含义
视图中线框的含义包括:
(1)一个线框代表一个面。
这个面可以是平面,曲面以及曲面加其切平面,甚至是一个孔。

(a)

(b)
图6 视图中一个线框的含义
(2)两个线框代表两个面
这两个面在空间上可能平行、相交或相错。

(a)

(b)
图7 视图中两个线框的含义
(3)框中有框,非凸必凹
视图中的两个线框互为嵌套关系时,小框代表的形体要么从大框代表的形体上凸出来,要么从大框中开槽或挖孔,凹进去。

图8 视图中框中有框的含义
4.构思的立体结构要合理
空间物体构思时,一方面要使构思的立体的投影与已知投影相吻合,另一方面还应注意两形体组合时要连接牢固,不能出现点接触、线连接和面连接,也要避免出现封闭空腔。




图9 构思的立体要合理
读图时,一方面一定要抓住特征视图,几个视图联系起来分析、比较,构思出正确的空间形体;另一方面要熟悉、掌握各种基本形体及其截交、相贯后的形状及变化,从而提高空间形体构思能力。
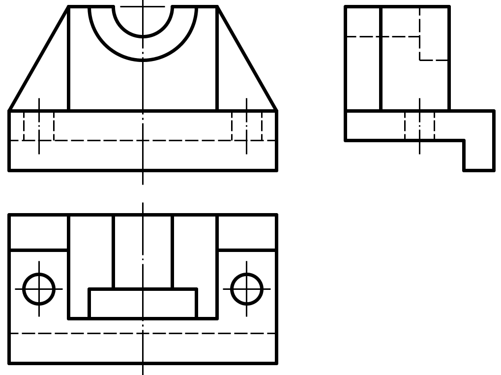
例1 根据图10所示的三视图,想出立体的形状

图10 三视图
分析 从形位特征明显的主视图入手,把视图分成四个线框,左右两个黄色线框一样,视为一个形体,左右对称分布,如图11所示。

图11 主视图的分线框
根据投影规律,形体Ⅰ为以左视图外轮廓为端面的左右拉伸柱体,处于定位支撑的底部,称为底板。底板上左右对称分布两个通孔,底板三视图及立体结构如图12所示。

图12 底板三视图及立体结构
根据投影规律,形体Ⅲ为长方体,线框Ⅳ与线框Ⅲ为嵌套关系,对应投影,线框Ⅳ为阶梯孔。形体Ⅲ三视图及立体结构,如图13所示。

图13 形体Ⅲ三视图及立体结构
根据投影规律,形体Ⅱ为三棱柱,三视图及立体结构,如图14所示。

图14 形体Ⅱ三视图及立体结构
处于定位支撑作用的形体Ⅰ在下方,形体Ⅱ在形体Ⅰ的上面左右居中的位置,形体Ⅲ左右对称分布。三个形体的后面靠齐,组合体立体结构如图15所示。

图15 组合体立体结构
例2 根据图16所给的主、俯视图,想出立体的形状,并补画左视图

图16 两视图
形体分析及画图过程如图17所示。

(a)分线框

(b)画圆筒

(c)画底板

(c)画肋板

(d)画凸台

(e)检查加深图线
图17 形体分析及画图过程
形体分析法是读图的基本方法,但对于某些表面形状复杂的立体和局部难懂的结构及挖切式组合体,切割后形体不完整,特征不明显。因此,往往需要在形体分析法的基础上,使用线面分析法。
物体由面包罗而成,分析每个表面的形状,相对投影面的位置,以及彼此之间的相对位置及交线,综合起来就是整个立体。
例3 根据图18所示的三视图,想出立体的形状

图18 两视图
线面分析法的着眼点是面,熟练掌握投影法三类面的投影特性。分线框,利用投影规律,分析面形,围合得整体。线面分析过程如图19所示。

(a)主视图线框

(b)俯视图线框

(c)左视图线框
图19 线面分析法

