目录

  • 1 绪论
    • 1.1 课程的研究对象和性质
    • 1.2 课程的教学目标和内容
    • 1.3 课程的学习方法
  • 2 制图的基本知识
    • 2.1 教学目标
    • 2.2 国家标准的基本规定
      • 2.2.1 图纸幅面和格式
      • 2.2.2 比例
      • 2.2.3 字体
      • 2.2.4 图线
    • 2.3 制图工具及其使用方法
    • 2.4 几何作图
    • 2.5 实践作业
  • 3 正投影基础
    • 3.1 教学目标
    • 3.2 投影法的基本知识
    • 3.3 投影体系及其投影规律
    • 3.4 立体上点、线、面的投影
  • 4 立体的投影
    • 4.1 教学目标
    • 4.2 平面立体
      • 4.2.1 棱柱
      • 4.2.2 棱锥
      • 4.2.3 第二次作业
      • 4.2.4 平面与平面立体相交
    • 4.3 曲面立体
      • 4.3.1 圆柱
      • 4.3.2 圆锥
      • 4.3.3 圆球
      • 4.3.4 第三次作业
      • 4.3.5 平面与曲面立体相交
      • 4.3.6 第四次作业
    • 4.4 两曲面立体相交
    • 4.5 第五次作业
    • 4.6 截交相贯习题总结
    • 4.7 测验考试
    • 4.8 测验答案讲解
  • 5 组合体
    • 5.1 教学目标
    • 5.2 组合体的形体分析
    • 5.3 组合体视图的绘制
    • 5.4 课后作业
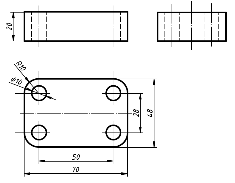
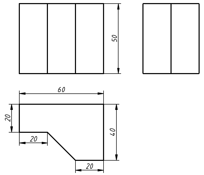
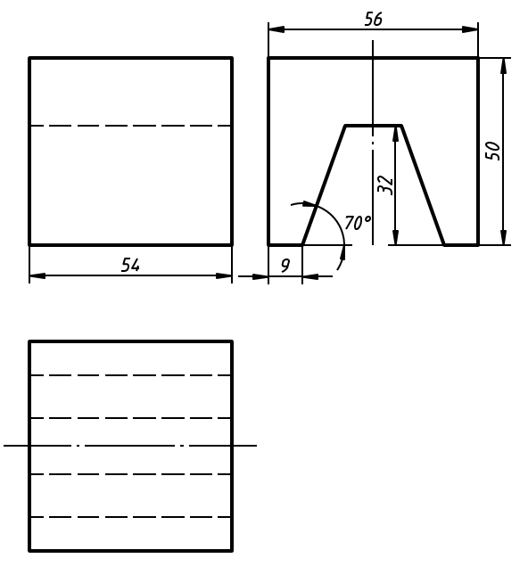
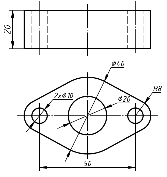
    • 5.5 三视图训练辅导
    • 5.6 尺寸标注
      • 5.6.1 尺寸标注的基本知识
      • 5.6.2 组合体尺寸标注
    • 5.7 板图“三视图”辅导
    • 5.8 组合体视图的阅读
    • 5.9 组合体读图例题
    • 5.10 组合体读图例题2
    • 5.11 组合体习题课1
    • 5.12 测验
  • 6 机件的表达方法
    • 6.1 视图
    • 6.2 剖视
      • 6.2.1 剖视的概念和画法
      • 6.2.2 剖视的种类
    • 6.3 剖视作业-1讲解辅导
    • 6.4 局部剖视图-例题讲解
    • 6.5 断面图
    • 6.6 其他表达方法
    • 6.7 剖视作业-2讲解辅导
    • 6.8 表达方法训练
    • 6.9 剖视阶段测验
  • 7 Auto CAD 基本入门
    • 7.1 AutoCAD基本知识
    • 7.2 图层设置
    • 7.3 基本绘图命令
    • 7.4 基本修改命令
    • 7.5 图样注释
    • 7.6 CAD练习题
基本绘图命令

(1)


(2)

(3)

(4)

(5)

(6)

(7)

(8)