建筑平面图Construction plan
上一节
下一节
建筑平面图Construction plan
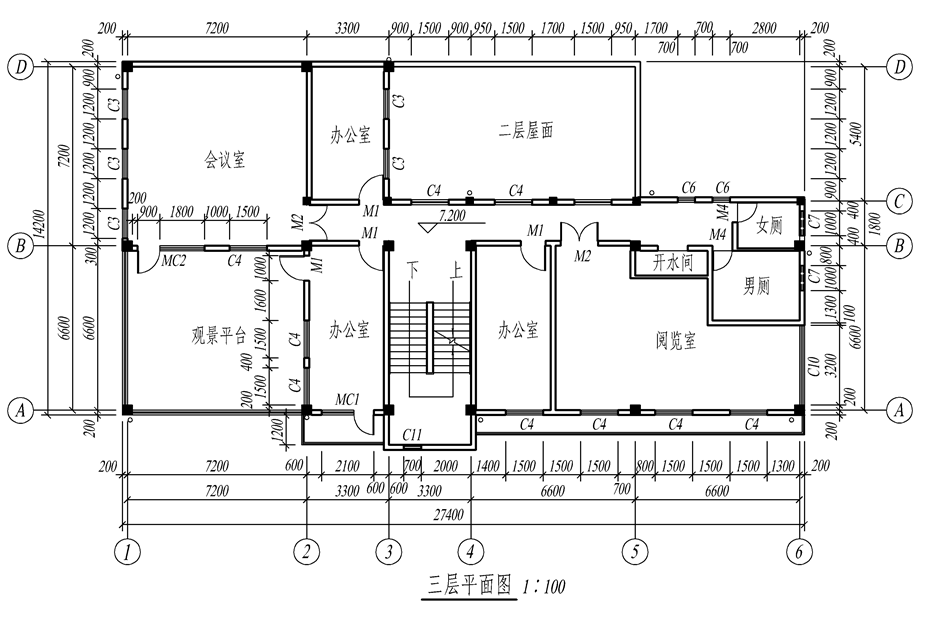
建筑平面图主要表示房屋的平面形状、大小、房间布置、门窗位置、楼梯、走道布置、墙体厚度及承重构件的尺寸等。建筑平面图是施工放线、砌墙和安装门窗等的依据,是施工图中最基本的图样之一。
Architectural plan mainly shows the plane shape of the house, size, room layout, location of doors and Windows, stairs, walkway layout, wall thickness and the size of load-bearing components. The architectural plan is the basis for laying out lines, laying walls, installing doors and Windows, etc. It is one of the most basic drawings in the construction drawing.

举例:





