Module Design of Building Constru...
LIU Rui
目录
暂无搜索结果
1 The Office Building Design
1.1 Design Conditions
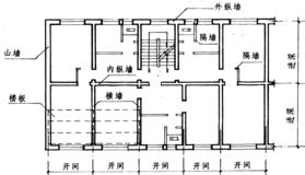
1.2 Design Result
1.3 Design Requirement
1.4 Coordinate Grid Lines of Building
1.5 Ground Elevation
Coordinate Grid Lines of Building
上一节
下一节
选择班级
确定
取消
图片预览