目录

  • 1 Introduction
    • 1.1 The concept of concrete structures
    • 1.2 Reinforced concrete structures
  • 2 Mechanical Properties Of R.C Materials
    • 2.1 Reinforced concrete structures
    • 2.2 Deformation of concrete under compression
    • 2.3 Bond between Concrete and Reinforcement
  • 3 Limit State Design
    • 3.1 Introduction to the Limit State Design
    • 3.2 Reliability Analysis
    • 3.3 The Current Chinese Code Practice
  • 4 Reinforced Concrete Beams
    • 4.1 Introduction
    • 4.2 Experimental phenomena of RC flexural members
    • 4.3 Basic Assumption
    • 4.4 The Equivalent Stress Block
    • 4.5 The balanced relative depth of the compressive         zone and the minimum steel ratio
    • 4.6 Analysis of a simply reinforced rectangular beam
    • 4.7 Analysis of Doubly Reinforced Rectangular Beam
    • 4.8 Analysis of T-section and I-section beams
  • 5 Shear Strength of Members
    • 5.1 Introduction
    • 5.2 The Mechanism of Shear resistance in RC Beams without Web Reinforcement
    • 5.3 The Mechanism of Shear resistance in      RC Beams with Web Reinforcement
    • 5.4 Factors affected the capacity of diagonal section
    • 5.5 Strength calculation methods of members under shear
    • 5.6 Ultimate diagonal Section Capacity of Tee-section beam
    • 5.7 Shear reinforcement design procedures
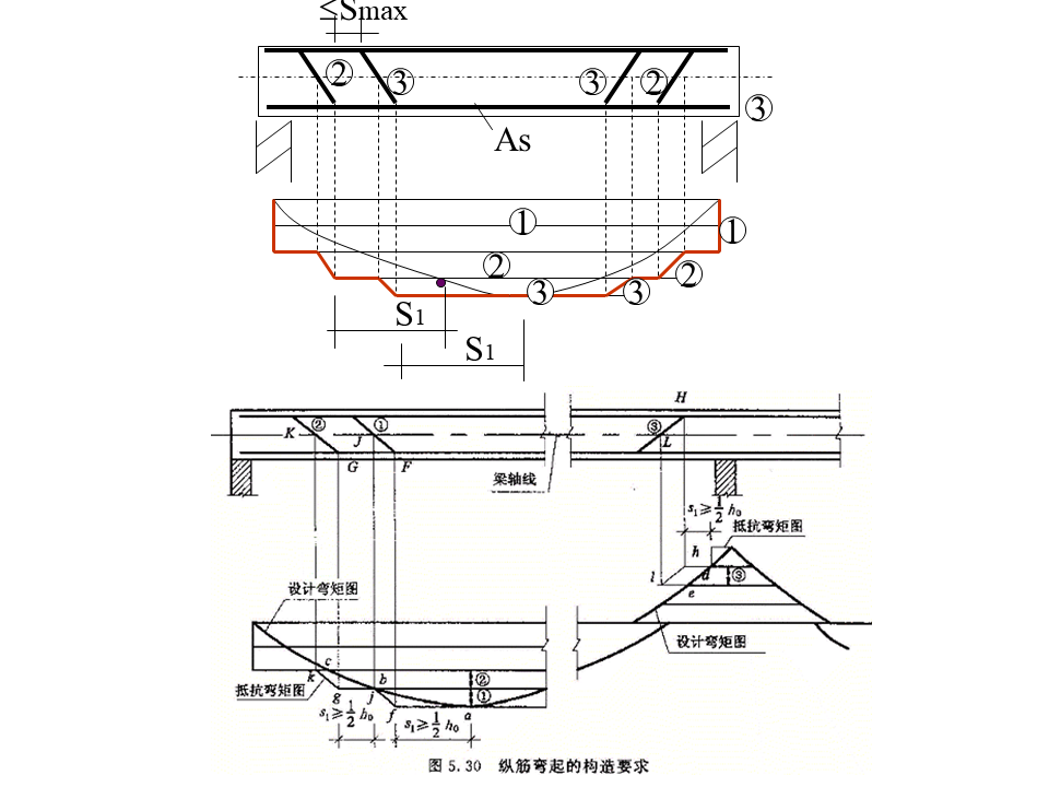
    • 5.8 Detailing requirements for reinforcement
  • 6 Girder-Beam-Slab System
    • 6.1 Reinforced concrete girder-beam-slab system
    • 6.2 Load transmission of girder-beam-slab system
    • 6.3 Design of one-way slab
    • 6.4 Design of two-way slab
  • 7 Compressive strength of members
    • 7.1 Introduction
    • 7.2 Detailing Requirements For Member under Compression
    • 7.3 Capacity of Axially Loaded Member
    • 7.4 Load Carrying Capacity of  Spiral Column
    • 7.5 Strength of Eccentrically Loaded Member
    • 7.6 Design Equations for Rectangular Section Member
    • 7.7 Design of rectangular section with symmetrically placed bars at two faces
    • 7.8 Design equations for I-section with symmetrically placed bars
  • 8 Tension Members
    • 8.1 Introduction
    • 8.2 Axially tension members
    • 8.3 Eccentrically tension members
    • 8.4 Shear strength of tension members
  • 9 Limit State of Serviceability
    • 9.1 Deflection of RC Member
    • 9.2 crack
    • 9.3 Section Ductility of Concrete Member
    • 9.4 Durability of Concrete Structure
  • 10 Prestressed Concrete
    • 10.1 Prestressed Concrete
Detailing requirements for reinforcement